FOR SALE Over $1,015,000: Spacious 4-Bed Double-Story Home | Hunua Views

Lot 430 Hunua Views, Franklin



with G.J. Gardner Homes Papakura


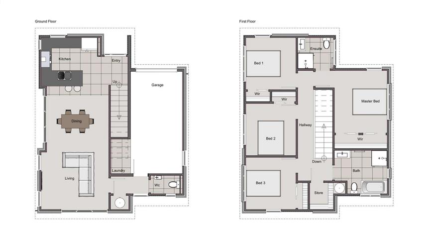
  • Bedrooms 4
  • Bathrooms 2
  • Garaging 1
  • Floor Area 160 m2

Description

Brand-New Spacious Double-Story Corner 4-Bed Family Home | Hunua Views

Step into this modern 4-bedroom, 2-bathroom double-story home with a single internal-access garage – designed for easy, low-maintenance family living.

Enjoy open-plan living, quality finishes, and landscaped outdoor spaces in a family-focused neighborhood with parks, walkways, and playgrounds.

  • Easy motorway access
  • Close to schools & the future Drury Town Centre
  • Perfect for families, first-home buyers, or investors – secure your new home today!

Design Specifications

  • Bedrooms 4
  • Bathrooms 2
  • Garaging 1
  • Floor Area 160 m2

Land

  • Land Area 310 m2

The price estimate includes GST and is an indication of the build cost and includes land. It should be used as a rough guide. Refer to the About Pricing page for more information. Images are artist's impression only. Regional variations in products and building requirements may apply.


For more information, contact Karan Soni:



find us


Location:
152 Great South Road
Takanini
Auckland

click to share!


or copy this link:

more from elocal

National’s Challenges

Ceasefire agreed between Israel and Lebanon – Trump

US seizes Iranian-flagged cargo ship – Trump

WORLD NEWS RT - April 17 2026 (17:00 MSK)

Russia strikes Ukrainian military and energy sites after Kiev kills children – MOD